Zum Inhalt springen
Vorderhaus
Hinterhaus
Badezimmer
Treppenhaus
Schlafzimmer
Hofansicht
Küche
Flur
Küche
Schlafzimmer
Küche

Airbnb & Booking: MFH mit 7 Ferienwohnungen/Monteurzimmern, genehmigt, Sollfaktor 7 & Sollrendite 14

Tannenbergstraße 9, 51465 Bergisch Gladbach

ZU VERKAUFEN Anlageimmobilie 1.700.000 € • 464 m²

Überblick

Adresse

Straße: Tannenbergstraße 9
PLZ: 51465
Ort: Bergisch Gladbach

Weitere Werte

Objektart: Anlageimmobilie
Baujahr: 1890
Vermietbare Fläche: 464 m²
Kaufpreis: 1.700.000 €
Grundstücksgröße: 286 m²

Objektbeschreibung

Einzigartige Investitionschance: Dieses historische Mehrfamilienhaus aus dem Jahr 1890, zuletzt umfassend saniert im Jahr 2023, kombiniert charmanten Altbau-Charakter mit modernster Ausstattung.

Es umfasst ein Vorder- und Hinterhaus mit insgesamt 7 Wohneinheiten auf einer großzügigen Fläche von 464 m².

Das Gebäude besticht durch seine Vielseitigkeit, da es offiziell für die Nutzung als Ferienwohnungen oder Monteurzimmer zugelassen ist.

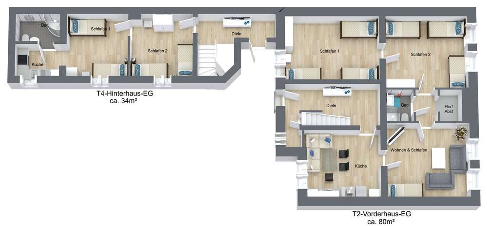
Vier große Wohnungen (80 m², 94 m², 89 m², 92 m²) befinden sich im Vordergebäude, wobei die Wohnung in der ersten Etage leer und kernsanierungsbedürftig ist. Die weiteren 3 Wohnungen (34 m², 34 m², 14 m²) befinden sich im Hinterhaus.

Mit einer Soll-Rendite von bis zu 14,29 % bei Eigenbetrieb und einem Sollfaktor von 7 bietet dieses Objekt eine außergewöhnliche Rentabilität.

Jede Wohneinheit ist individuell nutzbar
• perfekt für die steigende Nachfrage nach Kurzzeitvermietungen in der Region.

Dank seiner zentralen Lage in Bergisch Gladbach ist es sowohl für Geschäftsreisende als auch für Pendler, Kölner Messebesucher, Straßenbau-Mitarbeiter und Monteure attraktiv.

Selbst wenn man das Objekt nicht selbst betreiben möchte, ist der jetzige, solide und zuverlässige Mieter/Pächter bereit, mit Ihnen langfristige Mietverträge abzuschließen. Mit diesem Pächter als Mieter lässt sich ebenfalls eine sehr gute Rendite erzielen.

Aktuelle Netto-Ist-Miete: 108.000 €. Im Vorderhaus steht eine Wohnung leer und kann von Ihnen direkt kernsaniert werden. Dadurch kann sich die Ist-Miete von 108.000 € pro Jahr auf 135.438 € pro Jahr erhöhen.

-- Highlights: --

* Überwiegend saniert und modernisiert (u.a. Fassade, Dach, Leitungen, Heizsysteme)

* Genehmigte Nutzung als Ferienwohnung/Monteurzimmer

* Hohe Mietrendite (soll: 14,29% entspricht einem Sollfaktor: 7) und flexible Vermietungsoptionen

* Ist-Miete: 108.000 € pro Jahr, kann direkt nach Sanierung einer Wohnung auf 135.438 € erhöht werden.

Ausstattung

Dieses Mehrfamilienhaus überzeugt durch eine Mischung aus zeitgemäßer Modernisierung und funktionaler

-- Ausstattung: --

• Fenster: Moderne Isolierglasfenster (teilweise erneuert 2022) für optimales Raumklima

• Heizung: Neue oder generalüberholte Gas-Etagenheizungen in den meisten Einheiten

• Bäder: Duschbäder und WC in jeder Wohneinheit

• Bodenbeläge: Keramik, Laminat und PVC für eine langlebige und pflegeleichte Nutzung

Darüber hinaus wurden sämtliche Modernisierungsmaßnahmen durchgeführt, um den Aufenthaltskomfort zu maximieren. Von sanierten Wohnungen bis hin zur restaurierten Fassade wurden viele Details mit Blick auf Wertsteigerung und Nachhaltigkeit umgesetzt.

-- Besonderheiten: --

• Teilweise unterkellert, ideal für zusätzliche Nutzungsmöglichkeiten

• Effizient gestaltete Grundrisse für flexible Nutzung

Lagebeschreibung

Die Lage ist unschlagbar: Dieses Mehrfamilienhaus liegt am westlichen Innenstadtrand von Bergisch Gladbach, eingebettet in eine ruhige und gut angebundene Wohn- und Geschäftsgegend.

-- Vorteile der Lage: --

• Zentrale Infrastruktur: Einkaufsmöglichkeiten, Schulen, Kindergärten und Sporteinrichtungen in direkter Nähe

• Exzellente Verkehrsanbindung: Nur wenige Minuten zur Autobahn A4 mit schneller Verbindung nach Köln, Leverkusen und darüber hinaus

• Attraktives Wohnumfeld: Ruhige Nachbarschaft mit hoher Lebensqualität

Diese Lage ist besonders attraktiv für Familien, temporäre Fachkräfte, Monteure, Arbeiter und Geschäftsreisende
• eine Zielgruppe, die kontinuierlich wächst und eine hervorragende Auslastung garantiert.

Sonstiges

Dieses Angebot ist einzigartig und bietet Investoren die Möglichkeit, von der steigenden Nachfrage nach Kurzzeitvermietungen in der Region zu profitieren. Der Verkauf erfolgt unter Ausschluss jeglicher Gewährleistung, gemäß dem Grundsatz „wie gesehen, so gekauft“.

-- Wichtige Hinweise: --

• Die Nutzung als Ferienwohnung ist offiziell genehmigt, wobei die Bedingungen der Baugenehmigung einzuhalten sind.

• Die jährlichen Unterhaltskosten für den Zugang über dem Nachbargrundstück betragen ca. 350 €.

Ob als Boardinghouse, Monteurzimmer oder klassische Ferienwohnungen
• dieses Objekt bietet unzählige Möglichkeiten und ein zukunftssicheres Geschäftsmodell. Jetzt zugreifen und in ein renditestarkes Investment mit langfristigem Potenzial investieren!

-- Angegebener X-Faktor bezieht sich auf den Sollwert bei Eigenbetrieb

-- Impressum: --

Web-Exposé:
https://88888888.haus

Kontakt
Handy/WhatsApp;
+491712922222

e-Mail:
rongiomail@gmail.com

Postanschrift:
RONGIO GmbH
Marienburger Str. 2D
40789 Monheim am Rhein

Sitz:
RONGIO GmbH
Marienburger Str. 2D
40789 Monheim am Rhein

USt.-ID:
DE308229904

Register:
AG Düsseldorf
HRB86116

Geschäftsführung:
Muhsin Bayar

Provisionshinweis

Provisionshinweis

Bei Abschluss eines Kaufvertrages über die angebotene Immobilie wird eine Käuferprovision in Höhe von 3,00 % zzgl. 19 % MwSt. auf den beurkundeten Kaufpreis fällig. Die Provision ist verdient und fällig mit Abschluss des notariellen Kaufvertrages.

Gemäß § 656c BGB ist bei der Vermittlung von Kaufverträgen über Wohnungen und Einfamilienhäuser die Maklerprovision von Käufer und Verkäufer grundsätzlich zu gleichen Teilen zu tragen, sofern der Makler für beide Seiten tätig wird. Der Käufer schuldet seinen Anteil erst, wenn der Verkäufer nachweislich seinen Anteil gezahlt hat.

Die EDEL Investment GmbH ist als Immobilienmakler tätig und weist die angebotene Immobilie nach bzw. vermittelt den Abschluss eines Kaufvertrages. Ein Maklervertrag kommt durch die Inanspruchnahme unserer Maklertätigkeit zustande, insbesondere durch Anforderung eines Exposés, Vereinbarung eines Besichtigungstermins oder Aufnahme von Kaufverhandlungen über ein von uns nachgewiesenes Objekt.

Alle Angaben sind ohne Gewähr und basieren auf Informationen des Eigentümers. Eine Haftung für deren Richtigkeit, Vollständigkeit und Aktualität wird nicht übernommen. Zwischenverkauf und Irrtümer bleiben vorbehalten.

Lage & Navigation

Die Routenplanung über Google Maps setzt die Zustimmung zu funktionalen Cookies voraus (externer Dienst, ggf. Datenübermittlung an Google beim Aufruf). Bitte aktivieren Sie die Kategorie „Funktional“ in den Cookie-Einstellungen.

Grundrisse

Keller

Keller

EG

EG

1.OG

1.OG

2.OG

2.OG

Dachgeschoss

Dachgeschoss

Weitere Dokumente

Impressum

Gebäude & Ausstattung

  • • Geschosse: 4
  • • Grundstück: 286 m²
Ansprechpartner

EDEL Investment GmbH

Kontakt